Sobre la propiedad
Te presentamos una oportunidad de inversión en el corazón de Palamós, en plena calle Mayor, eje comercial y una de las vías con más vida y tránsito del municipio.
Palamós: vida todo el año y fuerte atractivo turístico
Palamós es uno de los destinos más consolidados de la Costa Brava. Combina un turismo constante —especialmente en temporada alta— con una población residente todo el año, además de un importante porcentaje de segundas residencias. Su puerto, playas, comercio, restauración y servicios hacen que la demanda residencial y comercial sea estable y muy sólida.
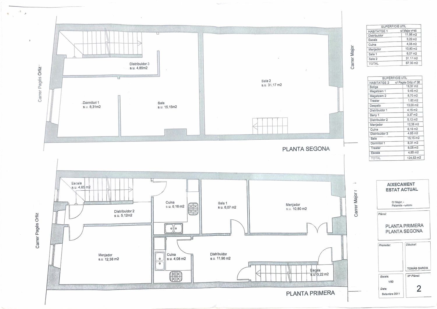
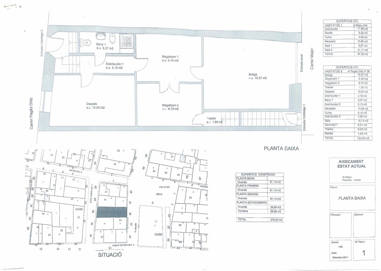
El edificio
Se trata de un edificio del año 1900, con carácter y ubicación privilegiada, que se vende totalmente a reformar. Es importante destacar que requiere una reforma integral, lo que lo convierte en un producto ideal para promotores o inversores que quieran desarrollar un proyecto a medida.
•3 plantas en total
•213 m² construidos actuales
•Superficie actual por planta: 78 m²
•Doble acceso, con entrada y salida a dos calles, un valor añadido tanto a nivel comercial como funcional
Anteproyecto de reforma (ya realizado por la propiedad)
Por parte de la propiedad, ya se ha elaborado un anteproyecto básico de reforma, lo que facilita y acelera el desarrollo del proyecto.
El anteproyecto contempla:
•Ampliación de 57 m², optimizando el volumen del edificio
•Planta baja destinada a local comercial, aprovechando que la calle Mayor es el núcleo comercial de Palamós, con alto paso peatonal y visibilidad
•Primera planta proyectada como una vivienda completa
•Segunda y futura tercera planta configuradas como una vivienda tipo dúplex, aportando un producto residencial atractivo y diferenciado
En resumen
Un edificio histórico, totalmente a reformar, situado en una de las mejores ubicaciones de Palamós, con anteproyecto ya definido, doble fachada y una clara combinación de uso comercial y residencial, en una población con vida todo el año y alta demanda.
Ideal para inversión, promoción o patrimonialización en una de las calles más emblemáticas de la Costa Brava.]
Comodidades

Aire acondicionado
Tour Virtual 360
Localización